Wednesday, November 11, 2015

a live edge claro walnut slab coffee table

 we finished up another claro walnut slab coffee table last week
polished steel 2" tubing base with some squiggles.  we're starting to use the squiggles
 more and more.  people like them and in my opinion, they add 'fun' and 'lightness' to the design.
click the photos to enlarge them ...
the coffee table above is in my own house and that was the inspiration piece for 
the base design the clients finally chose.  we did offer it with the base on the ends as shown
in the cad drawing above, but with the thicker slab, it seemed to feel better
 to have the base under the slab rather than at the ends ... 
i had some fun making the scale model .. a photo of the slab, painted mdf and brass wire
and sam welded up the base .. we're waiting for the house to be finished soon to deliver it ... 



Thursday, November 5, 2015

a moveable wall

we made a rolling wall recently.  never made one before, 
and it turned out to be a really cool object. 
 
 a local gallery, helmholz fine art, in manchester center, vt. had an opening recently in their new location, a wonderful, open space with dramatic high ceilings and lots of light.  similar to my own house, open spaces have, by definition, few walls, so one can run out of places to hang art pretty quickly.
enter the rolling wall.  inspired by a conversation the owner, lisa, had with ramsay gourd, a local architect, she described to me a 'T' shape with wheels that could be moved as shows and artwork change. 
seemed simple at first.  all we had to do was build it in the shop and move it into the gallery 10 miles away.  we started with the short end above, two pieces of ultralight mdf with two pieces of ultra light 1/2" sheetrock .. at 4' x 7', it turned out to be anything but 'ultralight', and we realized a wall 8' x 7' 
would be pretty hard to move out of the shop and into the gallery.
so, most of the ultralight was cut away on the cnc before the sheetrock was applied, which 
helped a bit, but it still wasn't all that ultralight when we were finished.
add some trim, some joint compound and paint, and it turned out to be still a pretty substantial object.  we buried some solid wood in one end of the big wall and used four 6" timberlocks to connect the two pieces which allowed them to be disassembled for moving.  trevor made some little pine plugs to cover the connectors on the cnc and we were all set.  the move went pretty smoothly once we figured out that we couldn't attach the wheels til we got the thing together.  below are the cad drawings ...

happy ending.  about 150 square feet of additional, flexible and moveable wall space and
room for many additional paintings on display ...  stop in if you're in manchester.  it's next to ben and jerry's, brooks brothers and vineyard vines on route 30.  it's a great space filled with great art, and a little of our fine furniture is on display there too ... fine art and ben and jerry's; you can't go wrong there.


Sunday, November 1, 2015

Dorset Custom Furniture's New Blog

"Welcome to Dorset Custom Furniture's new blog. Here you will find new projects we are working on, recently completed pieces, and other useful information regarding our furniture and designs. We have a wide range of many styles from Beidermeier, Federal, Traditional Country, Contemporary, Arts & Crafts, Japanese influenced, Greene and Greene and many more. All of our work is 100% custom made and designed from the ground up with the clients. We look forward to working with you on your custom piece."

www.dorsetcustomfurniture.com

11/1/2015
i think will wrote that introductory blog post for me back in october of 2007.   my, my, my, who knew?  here we are, 8 years and eight hundred and seventy six (!!!) blog posts later, on the first of november 2015.  it's been a long, fine ride, and while i tend to lose focus and slack off from time to time, i think i'll keep writing for at least the foreseeable future ... i like it .. the nostalgia of it, the record keeping of it, the diary function of it, and yes, the occasional comments from readers like you.  it seems a worthwhile undertaking.  so, thanks to all you 303,368 visitors who have read 1,963,322 pages of it for spending time with me, and hats off to all of you.

my very best regards,
dan

if you are new to the party, here's a link to a few of my personal favorite blog posts.  'most popular' are over there to the right side.  also below the popular posts are the 'categories' where posts are grouped by subject.

and at the top of the home page up in the right corner there is a link to our on line SLIDE SHOWS ! with some links to their corresponding blog posts ...

12/24/15

Friday, October 30, 2015

a mahogany slab conference table


this slab has been 'around the shop', looking for a home for a while now and it finally found one recently.  it will be going to a local financial firm, and will be a conference/meeting table 
in their about to be remodeled offices.
as you might imagine, any conference table in 2015 will require lots of wires and power outlets, in fact there will be four cat 5 cables, an hdmi cable, and 3 duplex outlets, all recessed into the bottom of the slab so that there are no holes poking up through it.  we will likely add some small simple wire retainers to support the cords where they loop up and over from below.

some early drawings and revisions of the plan above.

and we made a couple small scale models.  this one is 1" = 1'.

lots of hand routing by trevor as the slab was too big and heavy to go upstairs to the cnc.
the electrical layout

while you can't see it here, there are holes in the bottoms of the hollow legs and the wires will exit through the top of the leg and into the channels to the boxes.  in the end, the table will be bolted to the floor as it is installed and the wires will come in from the cellar below.  we had it 'on its feet' earlier in the week, but i somehow missed that photo opportunity .., we'll try that again later ...


Thursday, October 15, 2015

the beautiful music all around us .. stephen wade stops by ....

we had a great event in manchester last wednesday evening.  the verrmont council of the humanities 'first wednesdays' program featured stephen wade, a grammy winning banjo player and music historian.  he is a stunning performer and great story teller.  he spent an hour or so describing his travels through the south, meeting and playing with the old time musicians in the 60s and 70s interspersing the story with song on about 7 or 8 historic banjos from his collection.  naturally, at the end of the show, will needed to buy his book, 'the beautiful music all around us ... field recordings and the american experience'.  more about that book at this link.  while doing that, he struck up a conversation with stephen and his friend sandy, a banjo collector.  next day, wouldn't you know, they showed up at the shop for a visit and to test out a few of will's banjos.  great music, great banjos, and a great time was had by all ...
sandy, with a new one, hot off the press
 
and will plays a tune for stephen ..

see more photos of will's banjos and their construction on his seeders instruments instagram feed.

and speaking of fall in vermont ...

i seem to take the same photos every year .. same but different though. this year it was warm and really dry, and for a while we thought foliage season was going to be actually, a bust.  little did we know that mother nature was just waiting for the tourists to leave after columbus day to hit us with the good stuff.  well, that was tuesday, and every day seems to come on better than the one before.  
below are a few highlights.  
if you are at your desk and not on your phone, click the photos to enlarge them
standard 'backyard pond with japanese maple' photo
a longer range zoom with a little interesting sunlight
 some golf, with occasional rainbows ... it don't get much better than this
 



it's zinnia season
 and tomato season ...

  more to see through the weekend ...

and paddle tennis season starts sunday ... all good ... 


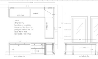
a built in cherry desk

well, long time no blog ... 3 weeks at least ... lots going on here at the end of summer, or should i say the beginning of fall.  i turned the heat on in the shop when i left today.  some in the area had a frost on their windshield this morning.  the light is changing, and the foliage is beautiful.  life is good. particularly since we installed this built in cherry desk this afternoon.  chris has been working on it for a few weeks now, and i'm glad to see it in place in its new home.
click the photos to enlarge them ... 
we started with a drawing and then moved on to the full size mockup below
it is in a bedroom, and the space, while not exactly tight, wanted to not be confining.  hard to tell that on paper so we built the mdf and notched luan mockup, which the clients actually used while we worked on the desk. 
great sun .. great view out the windows ...
the construction was a mix of table joinery and case joinery ...
drawers everywhere .. 10 in total, and chris got a real dovetail workout. 
      
ash boxes with cherry ply bottoms ...

more photos tomorrow when the installation is complete ...

it's a short drive, but a beauty of a drive ..